TOP
トップ
CONCEPT
コンセプト
DESIGN
デザイン
PLAN
間取り
LOCATION
環境
TECHNOLOGY
ZEH・IoT
EQUIPMENT
設備・仕様
SECURITY
セキュリティ
OUTLINE
物件概要
MAP
マンションラボ案内図
TWIN TOWERS PROJECT
ツインタワープロジェクト
マンションラボ案内図
ツインタワープロジェクト
物件概要
来場予約
資料請求
TOP
トップ
CONCEPT
コンセプト
DESIGN
デザイン
PLAN
間取り
LOCATION
環境
TECHNOLOGY
ZEH・IoT
EQUIPMENT
設備・仕様
SECURITY
セキュリティ
OUTLINE
物件概要
PLAN
間取り
A type
B type
C type
D type
D' type
E type
F type
G type
最上階
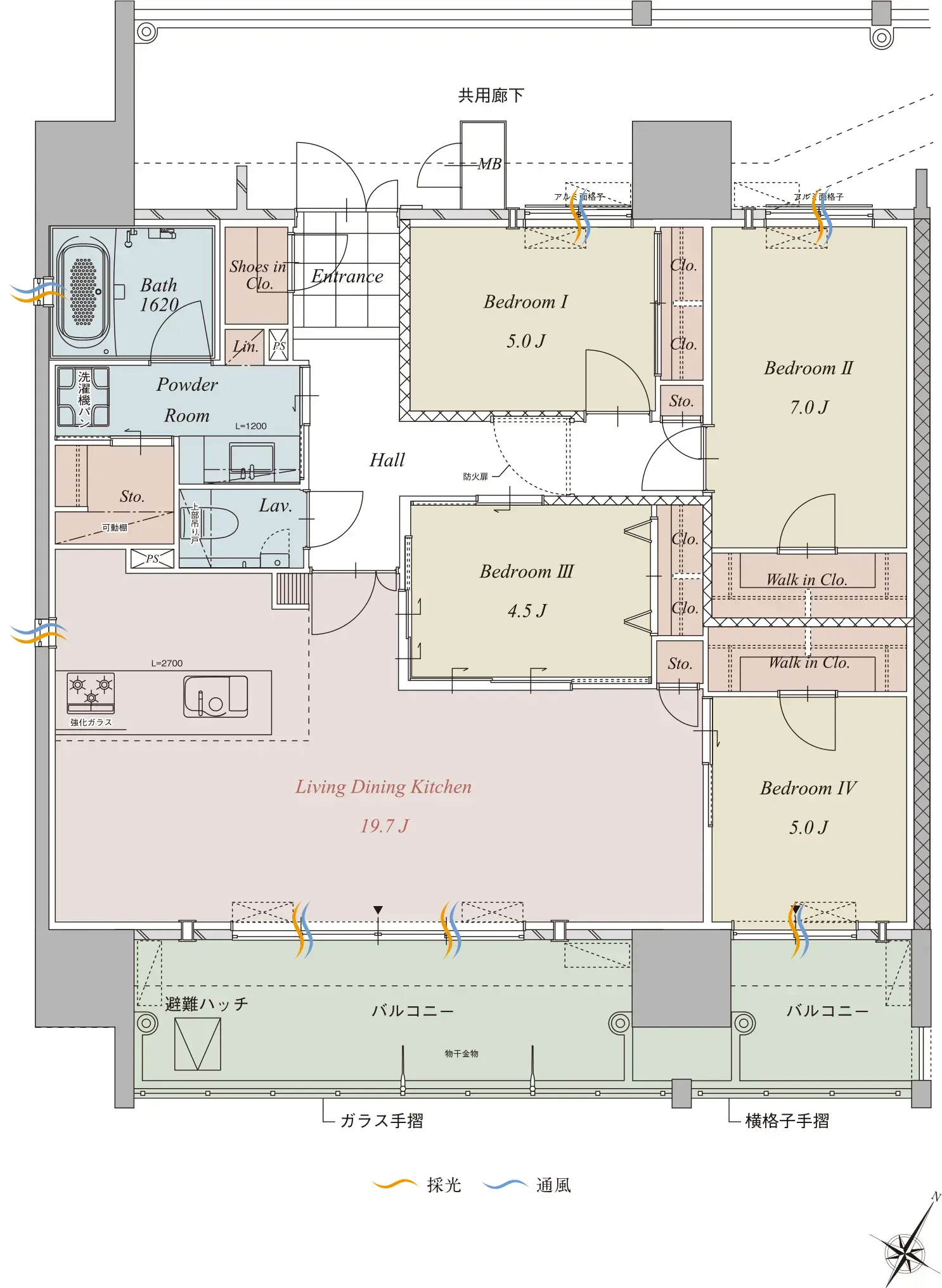
高い収納力と大空間を愉しむ開放感あふれるプレミアムな空間。
リビング・ダイニングと4.5帖の居室の仕切りを開放することで、約25帖の大空間に。
ゆとりのバスタイムを愉しめる大型の1620浴槽を採用。
2つのウォークインクローゼットをはじめ、シューズインクローゼットやパウダールーム横の収納など、家族全員のものを片付けることができる十分な収納力を確保。
A type
B type
C type
D type
D' type
E type
F type
G type
来場予約フォーム
来場予約はこちら
資料請求フォーム
資料請求はこちら
来場予約
資料請求
TEL